Description
Mandat 18281
Belle parcelle de TERRAIN CONSTRUCTIBLE d’environ 1393m2. CU OPERATIONNEL VALIDE.
Réseaux à proximité, à savoir eau, électricité, téléphone et assainissement collectif.
Située hors lotissement dans un quartier résidentiel à quelques minutes en voiture de Tence, Montfaucon-en-velay et Raucoules.
Belle exposition SUD-EST.
Vente en construction libre ou par le partenaire ayant effectué
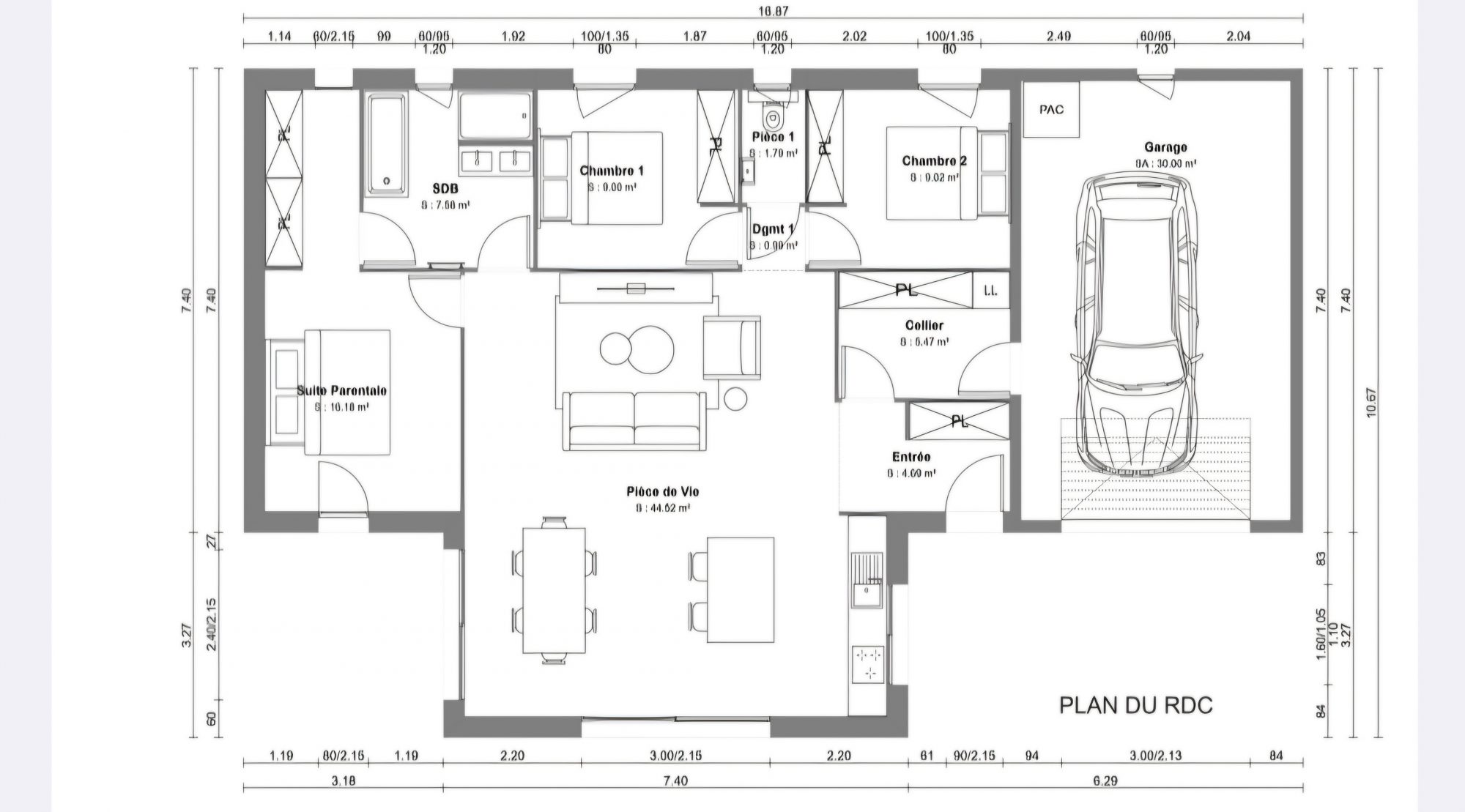
les plans et visuels 3D, Mr Bessette Benjamin de l’entreprise "Cécile Robin construction", ils vous aideront sans doutes à vous projeter plus facilement et imaginer la votre en situation, bien sur tout est possible…L’idée proposée est une maison de plain pied d’environ 98m2 avec 3chambres garage et terrasse. Moderne, fonctionnelle, chaleureuse.
A 45 minutes de Saint-Etienne ainsi que du Puy-en-velay.
Contactez Nadège PEYRARD 06.58.79.86.55
Réseaux à proximité, à savoir eau, électricité, téléphone et assainissement collectif.
Située hors lotissement dans un quartier résidentiel à quelques minutes en voiture de Tence, Montfaucon-en-velay et Raucoules.
Belle exposition SUD-EST.
Vente en construction libre ou par le partenaire ayant effectué
les plans et visuels 3D, Mr Bessette Benjamin de l’entreprise "Cécile Robin construction", ils vous aideront sans doutes à vous projeter plus facilement et imaginer la votre en situation, bien sur tout est possible…L’idée proposée est une maison de plain pied d’environ 98m2 avec 3chambres garage et terrasse. Moderne, fonctionnelle, chaleureuse.
A 45 minutes de Saint-Etienne ainsi que du Puy-en-velay.
Contactez Nadège PEYRARD 06.58.79.86.55
Équipements et confort
-
Surface terrain 1393 m²
-
Terrain constructible Constructible
Bilan sur les performances énergétiques du bien
Aucune information sur le DPE n'a été reçue.
Biens similaires
Réf : VT9556
Terrain - 755 m²
43220 Dunières
Nouveauté et exclusivité GTI IMMOBILIER,
RARE à la vente ! Découvrez cette parcelle de terrain entièrement constructible d’environ 755m2 située à ...
29 000 €
Voir le bien
Réf : VT9510
Terrain - 1098 m²
43200 Saint-Maurice-de-Lignon
Terrain à bâtir d'environ 1098 m².
Secteur privilégié dans petit hameau campagnard à proximité de la Loire.
CU positif, borné, réseaux en bordure s...
39 000 €
Voir le bien
Êtes-vous intéressé(e) par ce bien ?
Laissez un message
Votre contact
PEYRARD Nadege
GTI Immobilier DUNIERES
