+13
Rosières (43800)

Maison 4 pièce(s) 3 chambre(s) 105 m²

2
1066 m²
1
Réf VM67896
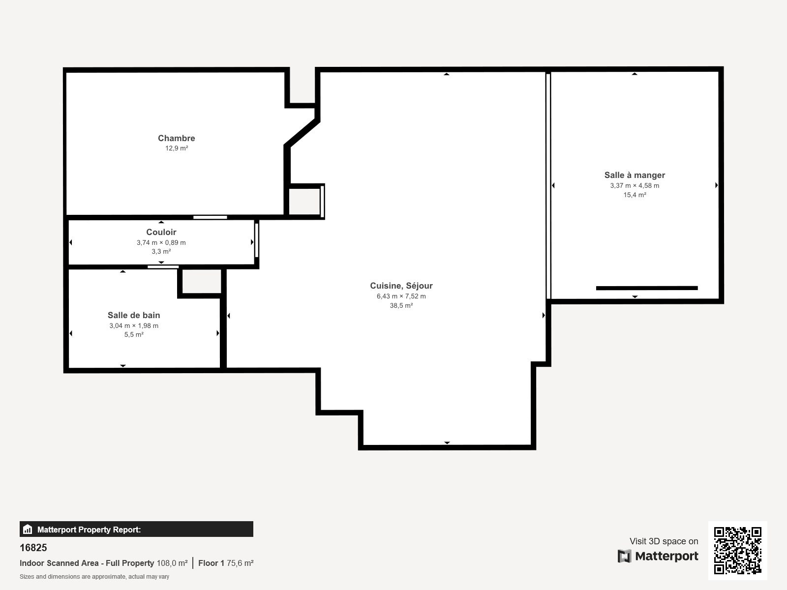
EXCLUSIVITÉ ! A 20mn du PUY , secteur ROSIÈRES, construction traditionnelle de plain-pied année 2000 TYPE T4 sur 2 niveaux dont une chambre et une salle d?eau au niveau principal, une cuisine équipée ouverte sur séjour caractérisé par son plafond cathédrale, avec accès sur la terrasse En annexe, un grand garage d'env 42 m² avec espace chaufferie.Elle est équipée d'un chauffage au sol dans la partie jour avec pompe à chaleur (partie nuit avec radiateurs) et d'une chaudière fioul pour production eau chaude + en complément un insert à boisDouble vitrage bois avec volets battants bois - La distribution des pièces est fonctionnelle et les volumes bien répartis avec l'atout charme du plafond cathédrale.A RAFRAICHIR et embellissement personnelDans un secteur très agréable, hors lotissement - avec un potentiel pour aménager le terrain plat , en partie arboréDécouvrez ce bien en consultant la visite virtuelle sur le site de GTI IMMOBILIER et en prenant rendez-vous avec votre conseillère Christèle GENTES 06 58 79 87 26

Bilan énergétique

Diagnostics énergetiques
A propos de ce bien Caractéristiques de ce bien
  • Surface 105 m²
  • terrain 1 066 m²
  • 3 chambre(s)
  • 2 salle(s) d'eau
  • construit en 2000
  • Chauffage autre : autre (autre)
  • 1 parking(s)
  • 2 niveau(x)

Financier

Informations financières
Les honoraires d'agence seront intégralement à la charge du vendeur  
Taxe foncière annuelle 655 €

Autour du bien

Découvrez le quartier
  • Commerces et santé
  • Loisirs
  • Ecoles
  • Transports
  • Pratique

Simulation

Calcul des mensualités
* Champs obligatoires
Groupe Gti Le Puy en Velay Agence