Villa 7 pièce(s) 5 chambre(s) 102 m²
Bilan énergétique
Diagnostics énergetiquesMontant estimé des dépenses annuelles d'énergie de ce logement pour un usage standard est compris entre 1 730 € et 2 390 € . 2021 étant l'année de référence des prix de l'énergie utilisés pour établir cette estimation.
- Surface 102 m²
- terrain 200 m²
- 5 chambre(s)
- 1 salle(s) de bain
- 1 salle(s) d'eau
- construit en 1960
- Chauffage autre : autre (bois)
- 2 niveau(x)
- cave
- terrasse
Composition
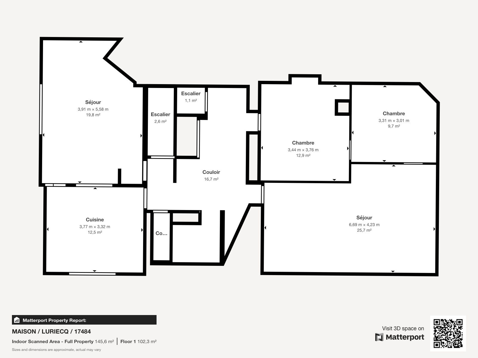
Composition de ce bienRez-de-chaussée
- chambre 12,9 m²
- chambre 9,7 m²
- salon 25,7 m²
- couloir 16,7 m²
- salle à manger 19,8 m²
- cuisine 12,5 m²
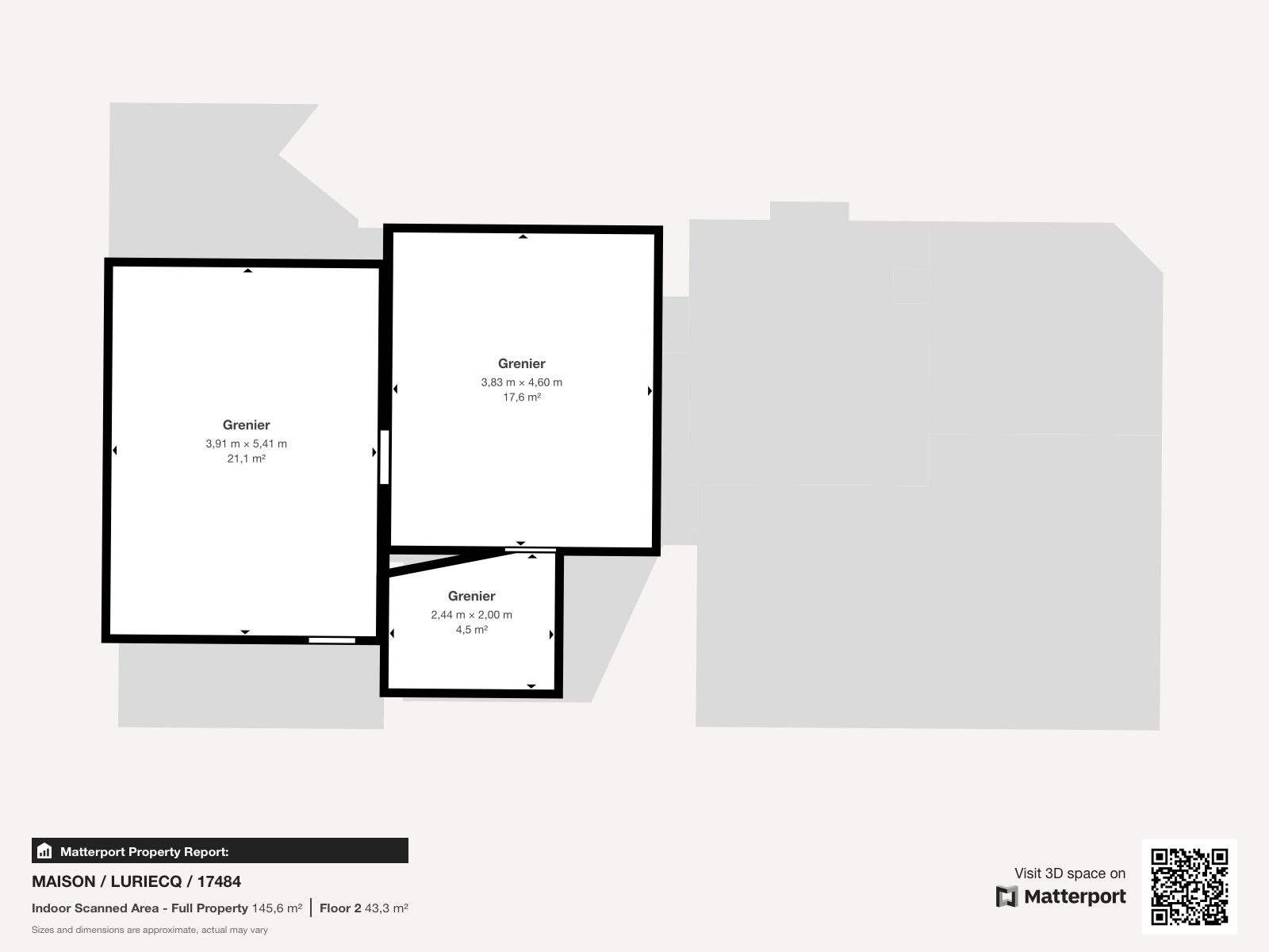
Etage 1
- point d?eau 4,5 m²
- chambre 21 m²
- bureau 17,6 m²
Financier
Informations financièresAutour du bien
Découvrez le quartier-
Commerces et santé
-
Loisirs
-
Ecoles
-
Transports
-
Pratique
Simulation
Calcul des mensualités
Les informations recueillies sur ce formulaire sont enregistrées dans un fichier informatisé par La Boite Immo agissant comme Sous-traitant du traitement pour la gestion de la clientèle/prospects de l'Agence / du Réseau qui reste Responsable du Traitement de vos Données personnelles.
La base légale du traitement repose sur l'intérêt légitime de l'Agence / du Réseau.
Elles sont conservées jusqu'à demande de suppression et sont destinées à l'Agence / au Réseau.
Conformément à la loi « informatique et libertés », vous disposez des droits d’accès, de rectification, d’effacement, d’opposition, de limitation et de portabilité de vos données. Vous pouvez retirer votre consentement à tout moment en contactant directement l’Agence / Le Réseau.
Consultez le site https://cnil.fr/fr pour plus d’informations sur vos droits.
Si vous estimez, après avoir contacté l'Agence / le Réseau, que vos droits « Informatique et Libertés » ne sont pas respectés, vous pouvez adresser une réclamation à la CNIL.
Nous vous informons de l’existence de la liste d'opposition au démarchage téléphonique « Bloctel », sur laquelle vous pouvez vous inscrire ici : https://www.bloctel.gouv.fr
Dans le cadre de la protection des Données personnelles, nous vous invitons à ne pas inscrire de Données sensibles dans le champ de saisie libre.
Ce site est protégé par reCAPTCHA, les Politiques de Confidentialité et les Conditions d'Utilisation de Google s'appliquent.