+9
Saint-Germain-Laprade (43700)

Ferme 6 pièce(s) 3 chambre(s) 182.79 m²

2
850 m²
Réf VM5634
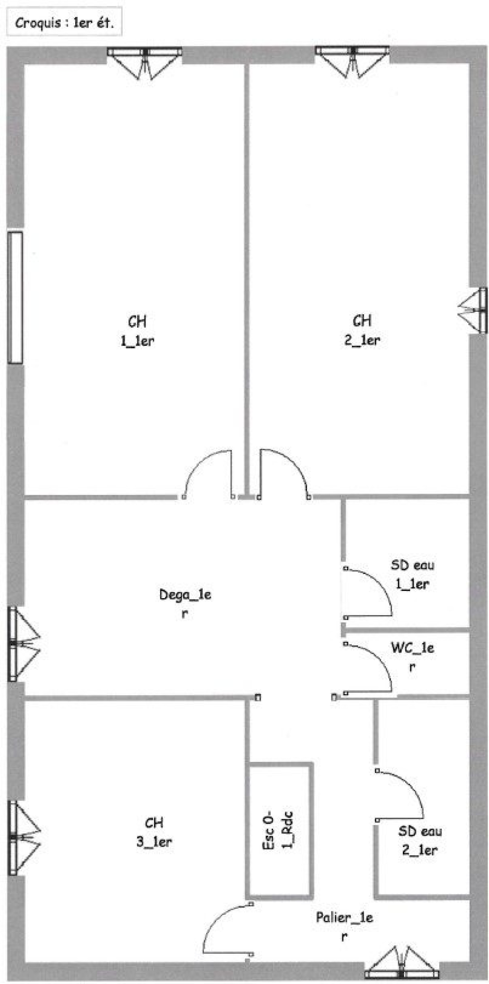
EXCLUSIVITÉ ! Plein SUD, Secteur SAINT GERMAIN LAPRADE, sur un terrain d'env 850m² (division en cours) dans un environnement calme et agréable, découvrez cette belle ferme en pierres jointées et sa montée de grange avec terrasse d'environ 75m², rénovée entre 2014 et 2017 (maçonnerie pour ouvertures fenêtres et baie vitrée, isolation, électricité, plomberie, chauffage, huisseries,...), comprenant 2 niveaux avec :au rez de chaussée : une cuisine, un bureau , un grand salon/séjour env 47m² , une lingerie, une chaufferie , un WC et dégagement -au 1er étage : 3 chambres dont 2 très grandes env 24m² (potentiel pour différents besoins), un espace détente, 2 salles d'eau , un WC et dégagement.Chauffage fuel installé en 2016, huisseries double vitrage PVC et alu, bonne isolation. Maison très bien entretenue et très lumineuse, assainissement collectif, potentiel intéressant sur les 183 m² aménagés, suivant besoin personnel ou professionnel (activité gîtes) , et d'autres possibilités pour agencement pièces.En annexe: dépendances (petit garage, remises et poulailler, abri pour voiture)VISITE IMMERSIVE sur notre site www.gti-immobilier.frPlus d'informations auprès de votre conseillère Christèle Gentes 06.58.79.87.26

Bilan énergétique

Diagnostics énergetiques
A propos de ce bien Caractéristiques de ce bien
  • Surface 182,79 m²
  • terrain 850 m²
  • 3 chambre(s)
  • 2 salle(s) d'eau
  • construit en 1907
  • Chauffage autre : autre (autre)
  • 2 niveau(x)

Financier

Informations financières
Les honoraires d'agence seront intégralement à la charge du vendeur  
Taxe foncière annuelle 1 257 €

Autour du bien

Découvrez le quartier
  • Commerces et santé
  • Loisirs
  • Ecoles
  • Transports
  • Pratique

Simulation

Calcul des mensualités
* Champs obligatoires
Groupe Gti Le Puy en Velay Agence